top of page

CLIFTON 2244
Overview:
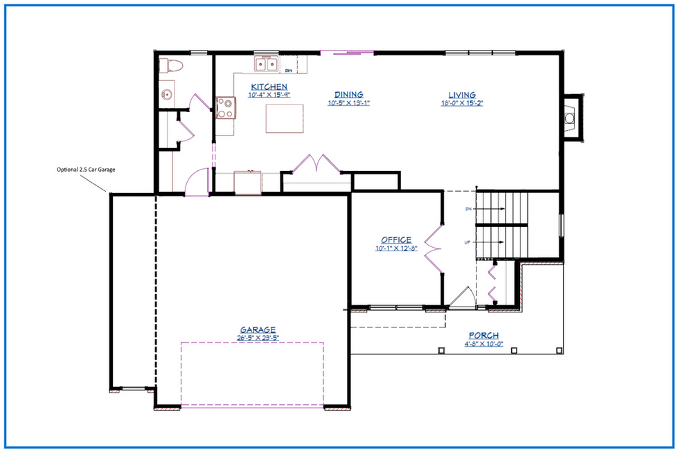
The Clifton 2244 is a flexible 2 story plan designed to fit all your needs. Garage drop zone includes bench with lockers and a private half bathroom. Enjoy a large kitchen with exceptional countertop and cabinet space. Master suite features a spacious en-suite bath with tiled shower and spacious walk-in closet. Optional structural features include: 2.5 car garage, 3 car garage, expanded plan options, and flexible basement buildouts. Enjoy peace of mind with higher quality build features including 2x6 walls, insulated garages, and so much more!
GALLERY
FLOORPLAN
bottom of page




























